Burnham Drive Apartments

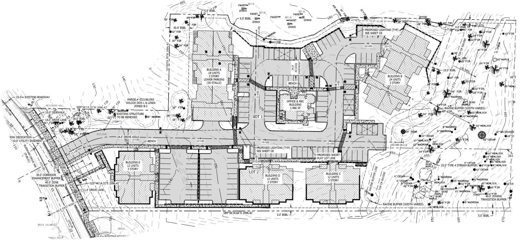
The project, approved by the Hearing Examiner on June 2, 2022, proposes the short subdivision of a 4.41-acre parcel (Assessor’s Parcel Number 0221061028) into two lots of approximately 1.6 acres and 2.8 acres. The development includes a mixed-use, multi-family complex consisting of 78 apartment units, a recreation building, and professional office space for lease. The site will be developed with a total of six new structures, along with associated parking and utility infrastructure. One existing structure on the site will be removed as part of the development. Vehicular access to the site will be provided from Burnham Drive along the western boundary via an ingress/egress and public utility easement. The applicant received a recommendation from the Design Review Board (DRB) regarding compliance with Article III (Site Design) and Article IV (Architecture) July 23, 2021.

Burnham Apartments

Related Documents